0

PARIS 15-APPARTEMENT 3 PIECES VUE DÉGAGÉE-BALCON

Paris (75015)
Réf : WVAP10000141

L’agence Welcome Home et Nicolas DELIVET vous présente en exclusivité :

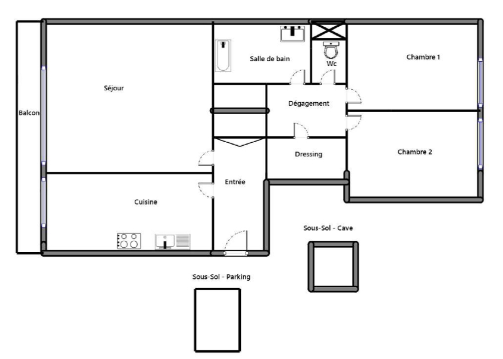
Paris 15 – rue de Cronstadt. Nous vous proposons un appartement de type 3 pièces de 68,79m² Loi Carrez.

Au 6è étage avec ascenseur, le bien se compose d’une entrée, d’un séjour donnant sur balcon, d’une cuisine indépendante ouvrable sur le séjour, d’un dégagement, de 2 chambres, d’un dressing, d’une salle de bains, d’un wc indépendant.

Appartement calme, traversant et lumineux.

Cave et emplacement de parking sous immeuble.

Actuellement loué 2040 € par mois charges comprises. L’appartement sera libre au plus tard le 1er janvier 2025.

Copropriété de 1968 en excellent état avec gardien.

Le bien est situé au pied de tous les commerces (boulangeries, médecins, pharmacies, restaurants, bars, supermarchés, etc…). Métro Vaugirard à 7 minutes, Bus à proximité immédiate.

Informations copropriété :

Nombre de lots : 610
Nombre d’appartements : 192

Charges annuelles : 3169,31 €

Taxes Foncières : 1810 €

DPE réalisé le 14 mai 2024. Consommation D : 206 KWh/m2. An. Émissions D : 37 kg CO2/m2. An. Estimations coûts annuels d’énergie. Entre 950 € et 1320 €. Prix moyens des énergies indexés au 1er janvier 2021 (abonnement compris).

Prix : 570.000€ Honoraires inclus à la charge du vendeur.

Les informations sur les risques auxquels ce bien est exposé sont disponibles sur le site Géorisques : http://www.georisques.gouv.fr

Prix du bien
Pièce(s) 3
Chambre(s) 2

Caractéristiques du bien

Caractéristiques Valeurs
Code postal 75015
Surface habitable (m²) 69 m²
Surface loi Carrez (m²) 68,79 m²
Nombre de chambre(s) 2
Nombre de pièces 3
Etage 6
Ascenseur OUI
Vue Dégagée
Nb de salle de bains 1
Cuisine Séparée
Mode de chauffage Autre
Type de chauffage Radiateur
Format de chauffage Collectif
Interphone OUI
Balcon OUI
Cave OUI
Année de construction 1968

Infos financières

Caractéristiques Valeurs
Les honoraires d'agence seront intégralement à la charge du vendeur  
Charges 264,11 €
Taxe foncière annuelle 1 810 €
Ce bien vous est proposé par
Ces biens peuvent vous intéresser