0

LEVALLOIS-ÉGLISE SAINT-JUSTIN-2 PIECES

Levallois-Perret (92300)
Réf : WVAP10000228

L’agence Welcome Home et Nicolas DELIVET vous présente en exclusivité :

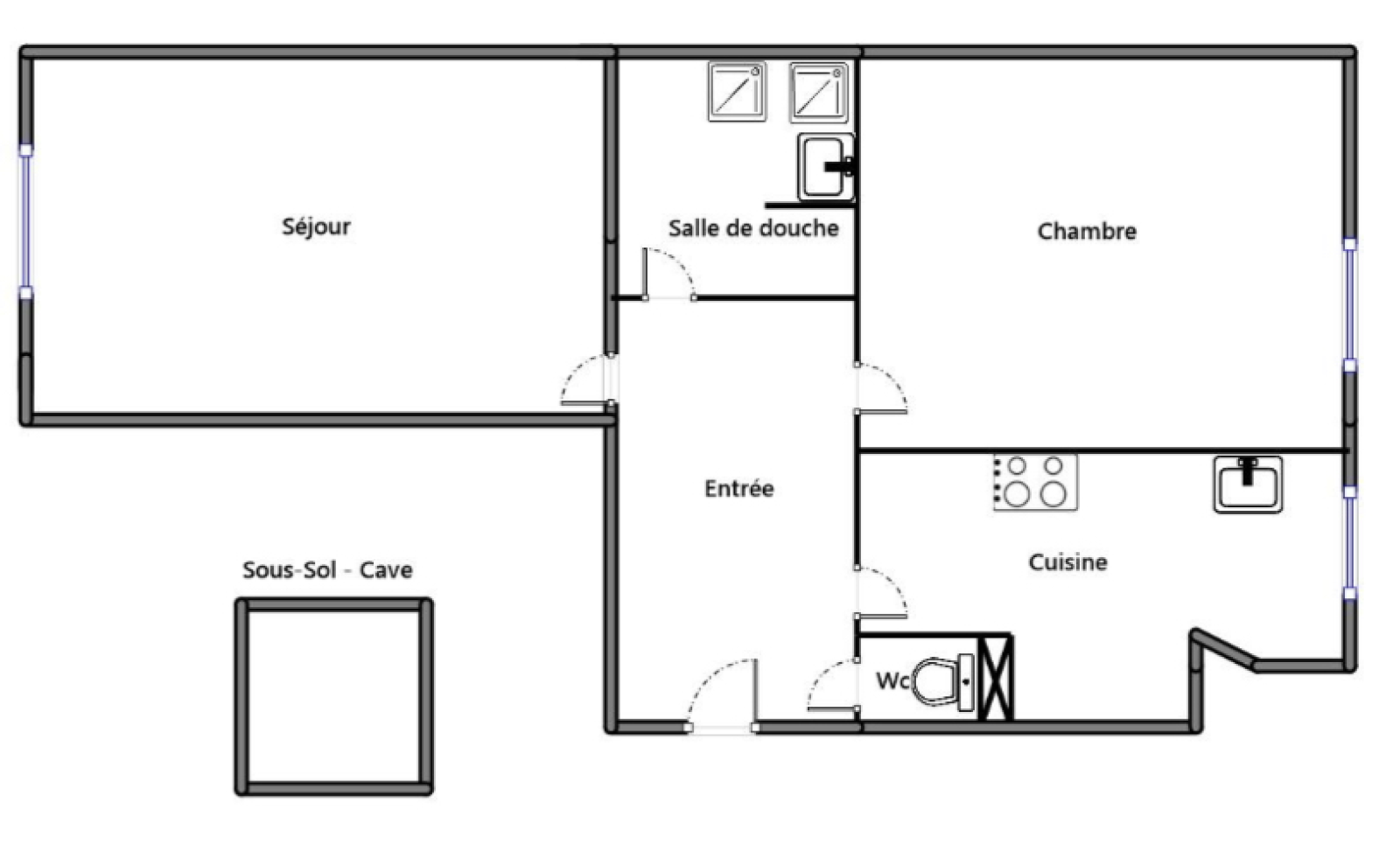
À Levallois-Perret – au niveau de l’église Saint-Justin. Nous vous proposons cet appartement de 46,69 m² loi Carrez situé au rez-de-chaussée d’un immeuble ancien, parfaitement entretenu et au charme indéniable.

Il se compose comme suit :

·Une entrée desservant les différents espaces,

·Un séjour,

·Une cuisine équipée, fonctionnelle et bien agencée,

·Un WC indépendant,

·Une salle d’eau,

·Une belle chambre sur cour avec dressing.

À cet ensemble s’ajoutent :

·Une cave, parfaite pour le stockage.

Cet appartement séduit par sa distribution intelligente et son authenticité, le tout dans un immeuble où l’entretien est irréprochable. Ravalement voté et payé.

Idéal pour les professions libérales.

Le bien est situé au pied de tous les commerces (boulangeries, médecins, pharmacies, restaurants, bars, supermarchés, etc…). Métro Anatole France à 5 minutes, Bus à proximité immédiate.

Informations copropriété :

Nombre de Lots : 30
Nombre d’appartements : 15

Charges annuelles : 1693,60 €

Taxes Foncières : 688 €

DPE réalisé le 13 avril 2023. Consommation E : 309 KWh/m2. An. Émissions C : 12 kg CO2/m2. An. Estimations coûts annuels d’énergie. Entre 1080 € et 1510 €. Prix moyens des énergies indexés su les années 2021 (abonnement compris).

Prix du bien : 460.000€ Honoraires inclus à la charge du vendeur.

Les informations sur les risques auxquels ce bien est exposé sont disponibles sur le site Géorisques : http://www.georisques.gouv.fr

Chez Welcome Home, on part d’une conviction simple : un projet immobilier, c’est bien plus qu’une simple annonce en ligne. Derrière chaque vente, chaque achat ou chaque location, il y a une vraie histoire, des espoirs, des hésitations, des émotions, et surtout des enjeux importants. Voilà pourquoi on a choisi d’accompagner nos clients avec une approche humaine, transparente et sur mesure, pour offrir un service de proximité qui repose sur la confiance et l’efficacité.

Spécialistes de la transaction immobilière, on suit les vendeurs, les acheteurs, les investisseurs et les familles à chaque étape de leur projet. Notre objectif est clair : être là, sérieux, réactifs et à l’écoute, pour que chacun puisse vendre dans les meilleures conditions ou trouver le bien qui colle vraiment à ses attentes.

Parce qu’un bien immobilier est unique, on soigne particulièrement sa mise en valeur. Chaque appartement, maison ou investissement mérite une stratégie adaptée. On prend donc le temps d’analyser en détail ses caractéristiques, son environnement, ses atouts, et le marché local, pour construire une commercialisation cohérente et efficace. Comme ça, on optimise la visibilité des annonces tout en attirant des acheteurs vraiment qualifiés.

Chez Welcome Home, on sait aussi qu’une estimation fiable est la première étape indispensable d’un projet réussi. C’est pour ça qu’on propose des estimations gratuites et sans engagement. Grâce à notre bonne connaissance du marché et à une analyse poussée des biens vendus récemment, on fournit des avis de valeur précis, réalistes et bien argumentés. Une estimation juste permet non seulement de vendre dans de bons délais, mais aussi d’éviter les erreurs classiques liées à une sur ou sous-évaluation.

On accompagne aussi nos clients sur tout l’aspect administratif, juridique et commercial, pour sécuriser chaque étape de la transaction. Du dossier de vente à la signature chez le notaire, on reste présents, disponibles et réactifs. Notre priorité : simplifier les démarches et permettre à nos clients d’avancer sereinement dans leur projet immobilier.

La communication, aujourd’hui, est essentielle pour réussir une vente. C’est pourquoi on diffuse nos annonces sur plein de supports pour offrir une visibilité maximale aux biens qu’on nous confie. On soigne tout : la qualité des photos, la rédaction des annonces, la mise en avant des atouts de chaque bien. Un texte immobilier ne doit pas juste décrire un logement : il doit donner envie, faire rêver, créer une émotion chez les futurs acheteurs.

Au-delà des transactions classiques, on mise aussi sur des relations professionnelles de qualité avec les autres acteurs de l’immobilier. Dans cet esprit, on est totalement ouverts à l’inter-cabinet et à la collaboration entre confrères, quand ça peut aider à faire aboutir les projets de nos clients. On est convaincus qu’une coopération intelligente entre pros sérieux et engagés permet d’augmenter les opportunités, de fluidifier les ventes, et d’offrir un service encore plus efficace aux vendeurs comme aux acheteurs. On reste donc dispo pour étudier toute collaboration constructive, dans un climat de confiance et de professionnalisme.

Choisir Welcome Home, c’est opter pour un accompagnement humain, une écoute attentive et un vrai investissement dans chaque projet immobilier. On met un point d’honneur à rester disponibles, transparents et impliqués, pour bâtir une relation durable avec nos clients. Chaque projet mérite une attention particulière, et on a à cœur d’apporter des solutions adaptées aux besoins de chacun.

Vous voulez vendre, acheter, faire estimer votre bien, ou juste obtenir des conseils sur le marché immobilier ? Welcome Home vous accompagne avec sérieux, proximité et engagement, pour concrétiser votre projet dans les meilleures conditions.


découvrir le bien
Prix du bien 460 000 €
Pièce(s) 2
Chambre(s) 1

Caractéristiques du bien

Caractéristiques Valeurs
Code postal 92300
Surface habitable (m²) 46,95 m²
Nombre de chambre(s) 1
Nombre de pièces 2
Ascenseur OUI
Nb de salle d'eau 1
Cuisine Séparée
Interphone OUI
Balcon NON
Terrasse NON
Cave OUI
Exposition Sud-Ouest
Année de construction 1930
Quartier Centre - Église Saint-Justin

Infos financières

Caractéristiques Valeurs
Prix de vente 460 000 €
Les honoraires d'agence seront intégralement à la charge du vendeur  
Charges 141,13 €
Taxe foncière annuelle 688 €

Bilans énergétiques

DPE GES
Ce bien vous est proposé par
Ce bien vous intéresse ?
Fieldset par défaut
Fieldset par défaut
Validation

* Champs obligatoires

Contacter l'agence
Validation
Les informations recueillies sur ce formulaire sont enregistrées dans un fichier informatisé par La Boite Immo agissant comme Sous-traitant du traitement pour la gestion de la clientèle/prospects de l'Agence / du Réseau qui reste Responsable du Traitement de vos Données personnelles. La base légale du traitement repose sur l'intérêt légitime de l'Agence / du Réseau. Elles sont conservées jusqu'à demande de suppression et sont destinées à l'Agence / au Réseau. Conformément à la loi « informatique et libertés », vous disposez des droits d’accès, de rectification, d’effacement, d’opposition, de limitation et de portabilité de vos données. Vous pouvez retirer votre consentement à tout moment en contactant directement l’Agence / Le Réseau. Consultez le site https://cnil.fr/fr pour plus d’informations sur vos droits. Si vous estimez, après avoir contacté l'Agence / le Réseau, que vos droits « Informatique et Libertés » ne sont pas respectés, vous pouvez adresser une réclamation à la CNIL. Nous vous informons de l’existence de la liste d'opposition au démarchage téléphonique « Bloctel », sur laquelle vous pouvez vous inscrire ici : https://www.bloctel.gouv.fr Dans le cadre de la protection des Données personnelles, nous vous invitons à ne pas inscrire de Données sensibles dans le champ de saisie libre.
Ce site est protégé par reCAPTCHA, les Politiques de Confidentialité et les Conditions d'Utilisation de Google s'appliquent.