0

PROGRAMME NEUF LEVALLOIS METRO ANATOLE FRANCE

Levallois-Perret (92300)
Réf : WOAP10000189

L’agence Welcome Home et Nicolas DELIVET vous présente : 

Une adresse prisée, un art de vivre typiquement levalloisien.

Une composition savante, aux écritures architecturales plurielles. Un cœur d’îlot verdoyant et apaisant.

Des espaces extérieurs d’exception pour vivre en plein air.

Un confort absolu, qui se décline du studio au 5 pièces.

Le haut de gamme redéfini par des prestations de qualité supérieure.

Livraison prévue : 3è trimestre 2028

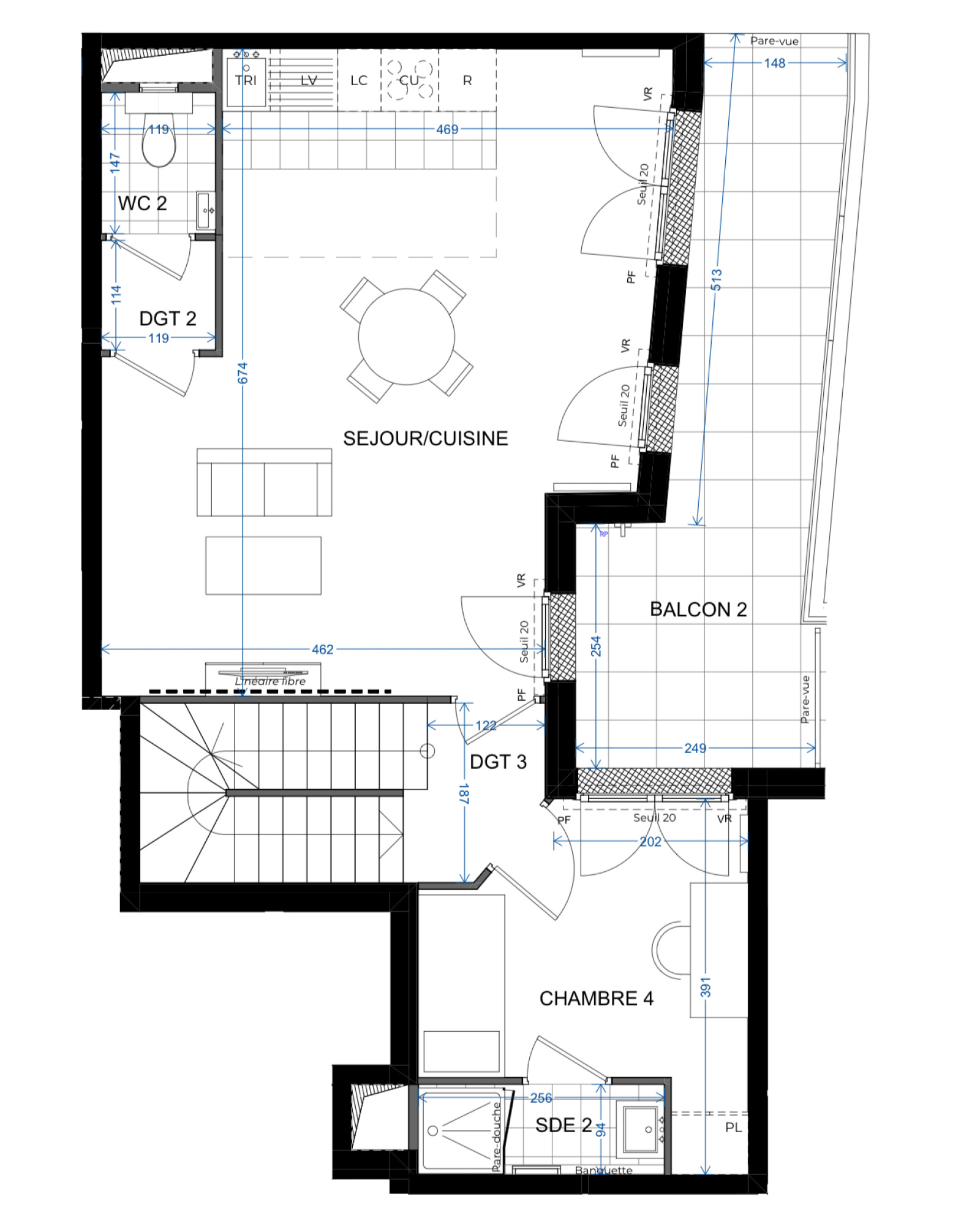
Un appartement de 5 pièces au 5è étage, offrant : au 1er niveau : une entrée, une chambre avec salle d’eau, un dégagement nuit, deux chambres, une salle de bains avec un wc, un beau balcon. Au 2è niveau : un beau séjour avec cuisine ouverte donnant sur balcon, un dégagement, une chambre avec salle d’eau, un wc indépendant. Un toit terrasse avec une zone végétalisée est à découvrir au dessus de ce lieu de vie d’exception. 

Deux places de parking complètent ce bien.

Situé au pied des commerces, à 3 minutes du métro Anatole France, à 5 minutes de la mairie et du marché.

Photos non contractuelles d’un appartement témoin décoré, exemple d’aménagement possible.

Prix : 2.050.000 € 

Les informations sur les risques auxquels ce bien est exposé sont disponibles sur le site Géorisques : http://www.georisques.gouv.fr

découvrir le bien
Prix du bien 2 050 000 €
Pièce(s) 5
Chambre(s) 4

Caractéristiques du bien

Caractéristiques Valeurs
Code postal 92300
Surface habitable (m²) 108,20 m²
Surface loi Carrez (m²) 107,65 m²
Nombre de chambre(s) 4
Nombre de pièces 5
Etage 5
Nombre de niveaux 3
Ascenseur OUI
Nb de salle de bains 1
Nb de salle d'eau 2
Cuisine Américaine
Balcon OUI
Terrasse OUI
Cave NON
Exposition Est
Année de construction 2028
Quartier Métro Anatole France

Infos financières

Caractéristiques Valeurs
Prix de vente 2 050 000 €
Les honoraires d'agence seront intégralement à la charge du vendeur  

Bilans énergétiques

DPE GES
Ce bien vous est proposé par
Ce bien vous intéresse ?
Fieldset par défaut
Fieldset par défaut
Validation

* Champs obligatoires

Contacter l'agence
Validation
Les informations recueillies sur ce formulaire sont enregistrées dans un fichier informatisé par La Boite Immo agissant comme Sous-traitant du traitement pour la gestion de la clientèle/prospects de l'Agence / du Réseau qui reste Responsable du Traitement de vos Données personnelles. La base légale du traitement repose sur l'intérêt légitime de l'Agence / du Réseau. Elles sont conservées jusqu'à demande de suppression et sont destinées à l'Agence / au Réseau. Conformément à la loi « informatique et libertés », vous disposez des droits d’accès, de rectification, d’effacement, d’opposition, de limitation et de portabilité de vos données. Vous pouvez retirer votre consentement à tout moment en contactant directement l’Agence / Le Réseau. Consultez le site https://cnil.fr/fr pour plus d’informations sur vos droits. Si vous estimez, après avoir contacté l'Agence / le Réseau, que vos droits « Informatique et Libertés » ne sont pas respectés, vous pouvez adresser une réclamation à la CNIL. Nous vous informons de l’existence de la liste d'opposition au démarchage téléphonique « Bloctel », sur laquelle vous pouvez vous inscrire ici : https://www.bloctel.gouv.fr Dans le cadre de la protection des Données personnelles, nous vous invitons à ne pas inscrire de Données sensibles dans le champ de saisie libre.
Ce site est protégé par reCAPTCHA, les Politiques de Confidentialité et les Conditions d'Utilisation de Google s'appliquent.
Ces biens peuvent vous intéresser