0

LEVALLOIS-APPARTEMENT T3 AVEC BALCONS

Levallois-Perret (92300)
Réf : WVAP10000218

L’agence Welcome Home et Nicolas DELIVET vous présente en exclusivité :

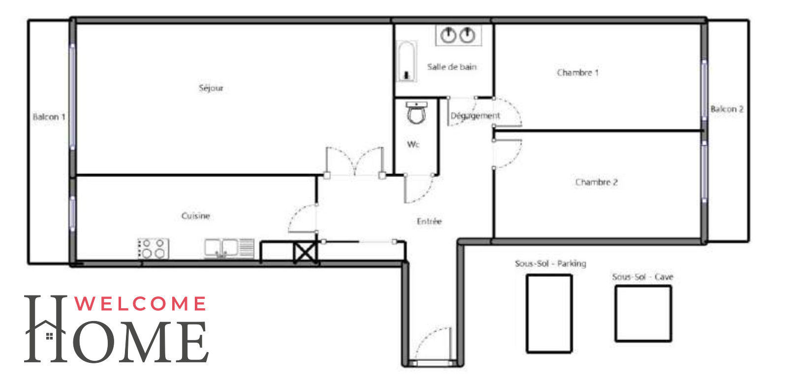
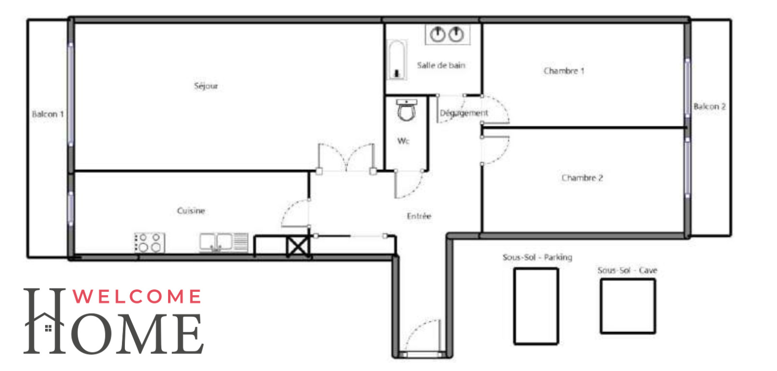
À Levallois-Perret. Nous vous proposons cet appartement de 72,31 m² Loi Carrez + 2 balcons de 7,90m2 et 4,90m2 situé au calme, entièrement sur cour, avec ascenseur d’un immeuble récent de standing, parfaitement entretenu.

Il se compose comme suit :

  • Une entrée avec placard desservant les différents espaces,
  • Un grand séjour s’ouvrant sur un balcon de 7,90m2 ,
  • Une cuisine indépendante qu’il est possible d’ouvrir sur le séjour,
  • Un WC indépendant,
  • Un dégagement nuit,
  • Deux belles chambres de plus de 12m2 avec placard donnant sur un balcon,
  • Une salle de bains.

À cet ensemble s’ajoutent :

  • Deux balcons totalisant 12,80 m²,
  • Une cave, parfaite pour le stockage,
  • Un emplacement de parking pour votre confort au quotidien.

Cet appartement séduit par sa distribution intelligente, ses beaux extérieurs et son calme. Le tout dans un immeuble où l’entretien est irréprochable.

Le bien est situé au pied de tous les commerces (boulangeries, médecins, pharmacies, restaurants, bars, supermarchés, etc…). Métro à quelques minutes. Bus à proximité immédiate.

Informations copropriété :

Nombre de Lots : 314
Nombre d’appartements : 105

Charges annuelles : 2239,88 €

Taxes Foncières : 1530 €

DPE réalisé le 10 décembre 2025. Consommation D : 202 KWh/m2. An. Émissions B : 6 kg CO2/m2. An. Estimations coûts annuels d’énergie. Entre 1160 € et 1600 €. Prix moyens des énergies indexés su les années 2021, 2022 et 2023 (abonnement compris).

Prix du bien : 670.000€ honoraires inclus. 650.000€ hors honoraires. 20.000€ TTC à la charge de l’acquéreur.


Les informations sur les risques auxquels ce bien est exposé sont disponibles sur le site Géorisques : http://www.georisques.gouv.fr

découvrir le bien
Prix du bien 670 000 €
Pièce(s) 3
Chambre(s) 2

Caractéristiques du bien

Caractéristiques Valeurs
Code postal 92300
Surface habitable (m²) 73 m²
Nombre de chambre(s) 2
Nombre de pièces 3
Etage 1
Ascenseur OUI
Vue Sur cour
Nb de salle de bains 1
Cuisine Séparée
Type de cuisine SEMI-EQUIPEE
Mode de chauffage Electrique
Type de chauffage Convecteur
Format de chauffage Individuel
Interphone OUI
Balcon OUI
Terrasse NON
Cave OUI
Surface cave (m²) 2.92
Exposition Sud-Est
Année de construction 1995

Infos financières

Caractéristiques Valeurs
Prix de vente honoraires TTC inclus 670 000 €
Prix de vente honoraires TTC exclus 650 000 €
Honoraires TTC à la charge acquéreur 3.08 %
Charges 186,65 €
Taxe d'habitation 1 530 €

Bilans énergétiques

DPE GES
Ce bien vous est proposé par
Ce bien vous intéresse ?
Fieldset par défaut
Fieldset par défaut
Validation

* Champs obligatoires

Contacter l'agence
Validation
Les informations recueillies sur ce formulaire sont enregistrées dans un fichier informatisé par La Boite Immo agissant comme Sous-traitant du traitement pour la gestion de la clientèle/prospects de l'Agence / du Réseau qui reste Responsable du Traitement de vos Données personnelles. La base légale du traitement repose sur l'intérêt légitime de l'Agence / du Réseau. Elles sont conservées jusqu'à demande de suppression et sont destinées à l'Agence / au Réseau. Conformément à la loi « informatique et libertés », vous disposez des droits d’accès, de rectification, d’effacement, d’opposition, de limitation et de portabilité de vos données. Vous pouvez retirer votre consentement à tout moment en contactant directement l’Agence / Le Réseau. Consultez le site https://cnil.fr/fr pour plus d’informations sur vos droits. Si vous estimez, après avoir contacté l'Agence / le Réseau, que vos droits « Informatique et Libertés » ne sont pas respectés, vous pouvez adresser une réclamation à la CNIL. Nous vous informons de l’existence de la liste d'opposition au démarchage téléphonique « Bloctel », sur laquelle vous pouvez vous inscrire ici : https://www.bloctel.gouv.fr Dans le cadre de la protection des Données personnelles, nous vous invitons à ne pas inscrire de Données sensibles dans le champ de saisie libre.
Ce site est protégé par reCAPTCHA, les Politiques de Confidentialité et les Conditions d'Utilisation de Google s'appliquent.