0

LEVALLOIS-APPARTEMENT DERNIER ÉTAGE AVEC TERRASSE PLEIN CIEL

Levallois-Perret (92300)
Réf : WVAP10000245

L’agence Welcome Home et Nicolas DELIVET vous présente en exclusivité : 

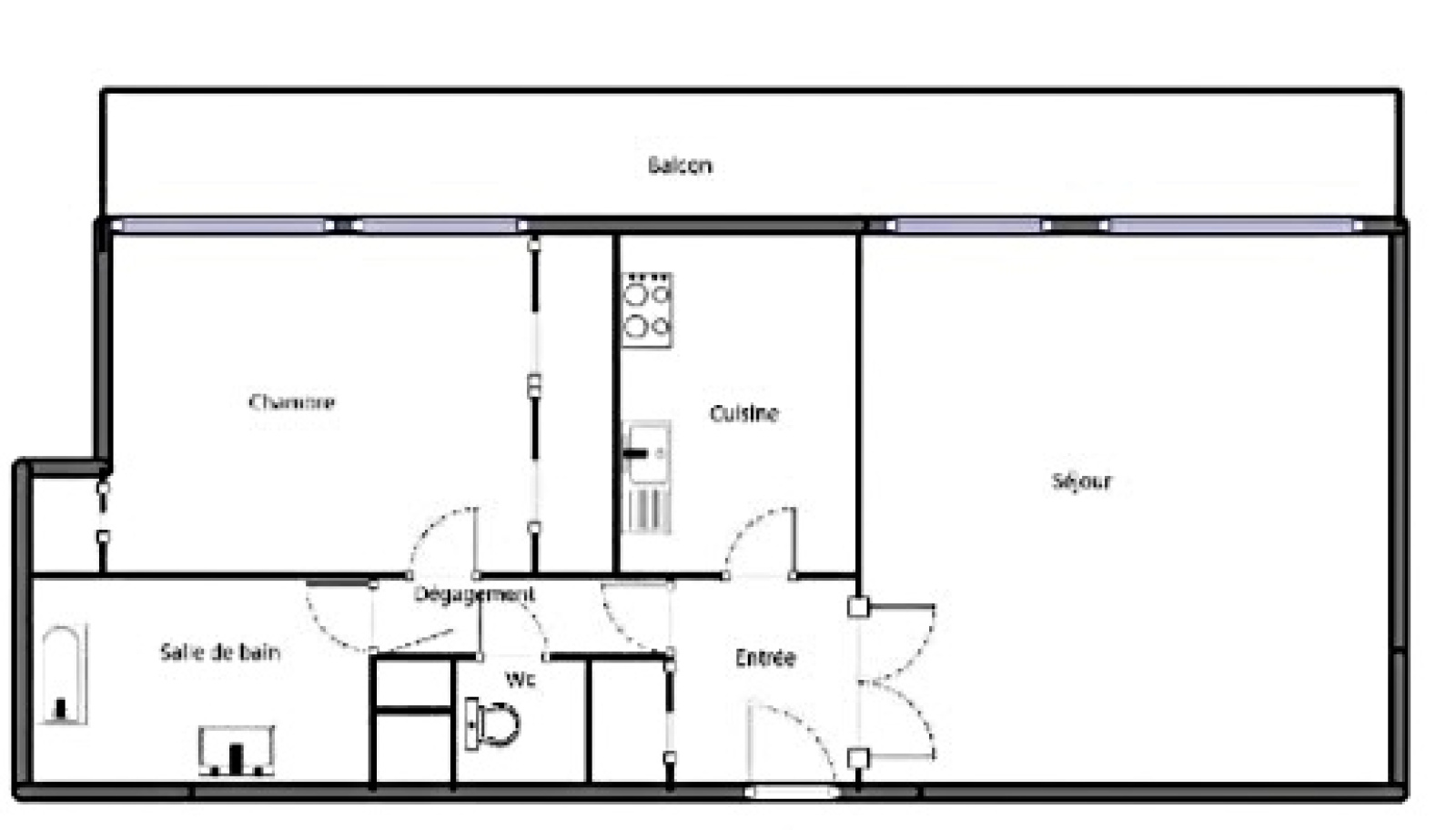
À Levallois-Perret – rue Marius Aufan à quelques minutes du métro Anatole France (ligne 3). Nous vous proposons cet appartement de 73,39 m² de surface au sol totale (56,39 m² Loi Carrez + terrasse de 17m2) situé au 6eme et dernier étage avec ascenseur d’un immeuble récent de standing, très sécurisé avec code sur rue puis vidéophone pour l’accès aux étages.

Il se compose comme suit :

·Une entrée avec placard desservant les différents espaces,

·Un séjour baigné de soleil ouvrant sur une terrasse de 17m2,

·Une cuisine indépendante, fonctionnelle et bien agencée, qu’il est possible d’ouvrir sur le séjour,

·Un dégagement nuit,

·Une belle chambre de plus de 13m2, avec placards,

·WC séparé.

À cet ensemble s’ajoutent :

·Un grand emplacement de parking en sous-sol, permettant d’accueillir une voiture et une moto, accès très large et manœuvrant avec sécurisation par une double porte

·Une cave, parfaite pour le stockage.

Notre coup de cœur :

·Vue plein ciel avec en toile de fond la Tour Eiffel.

Cet appartement séduit par sa distribution intelligente, son extérieur rare, et son authenticité, le tout dans un immeuble où l’entretien est irréprochable. Prestations de qualité : porte blindée, fenêtres isolantes, volets roulants, parquet.


Le bien est situé au pied de tous les commerces (boulangeries, médecins, pharmacies, restaurants, bars, supermarchés, etc…). Métro Anatole France à moins de 5 minutes, Bus à proximité immédiate.

Informations copropriété : 

Nombre de Lots : 197
Nombre d’appartements : 57

Charges annuelles : 2771,76 €

Taxes Foncières : 1380 €

DPE réalisé le 27 janvier 2026. Consommation D : 184 KWh/m2. An. Émissions B : 7 kg CO2/m2. An. Estimations coûts annuels d’énergie. Entre 1040 € et 1450 €. Prix moyens des énergies indexés su les années 2021, 2022 et 2023 (abonnement compris).

Prix du bien : 695.000€ Honoraires inclus à la charge de l'acquéreur. 685.000€ hors honoraires. Honoraires : 10.000€ TTC à la charge de l’acquéreur.


Les informations sur les risques auxquels ce bien est exposé sont disponibles sur le site Géorisques : http://www.georisques.gouv.fr

découvrir le bien
Prix du bien 695 000 €
Pièce(s) 2
Chambre(s) 1

Caractéristiques du bien

Caractéristiques Valeurs
Code postal 92300
Surface habitable (m²) 73,39 m²
Nombre de chambre(s) 1
Nombre de pièces 2
Etage 6
Ascenseur OUI
Vue Plein ciel
Nb de salle de bains 1
Mode de chauffage Electrique
Type de chauffage Convecteur
Format de chauffage Individuel
Interphone OUI
Balcon NON
Terrasse OUI
Cave OUI
Exposition Sud-Ouest
Année de construction 1999
Quartier Métro Anatole France

Infos financières

Caractéristiques Valeurs
Prix de vente 695 000 €
Les honoraires d'agence seront intégralement à la charge du vendeur  
Charges 230,98 €
Taxe foncière annuelle 1 380 €

Bilans énergétiques

DPE GES
Ce bien vous est proposé par
Ce bien vous intéresse ?
Fieldset par défaut
Fieldset par défaut
Validation

* Champs obligatoires

Contacter l'agence
Validation
Les informations recueillies sur ce formulaire sont enregistrées dans un fichier informatisé par La Boite Immo agissant comme Sous-traitant du traitement pour la gestion de la clientèle/prospects de l'Agence / du Réseau qui reste Responsable du Traitement de vos Données personnelles. La base légale du traitement repose sur l'intérêt légitime de l'Agence / du Réseau. Elles sont conservées jusqu'à demande de suppression et sont destinées à l'Agence / au Réseau. Conformément à la loi « informatique et libertés », vous disposez des droits d’accès, de rectification, d’effacement, d’opposition, de limitation et de portabilité de vos données. Vous pouvez retirer votre consentement à tout moment en contactant directement l’Agence / Le Réseau. Consultez le site https://cnil.fr/fr pour plus d’informations sur vos droits. Si vous estimez, après avoir contacté l'Agence / le Réseau, que vos droits « Informatique et Libertés » ne sont pas respectés, vous pouvez adresser une réclamation à la CNIL. Nous vous informons de l’existence de la liste d'opposition au démarchage téléphonique « Bloctel », sur laquelle vous pouvez vous inscrire ici : https://www.bloctel.gouv.fr Dans le cadre de la protection des Données personnelles, nous vous invitons à ne pas inscrire de Données sensibles dans le champ de saisie libre.
Ce site est protégé par reCAPTCHA, les Politiques de Confidentialité et les Conditions d'Utilisation de Google s'appliquent.